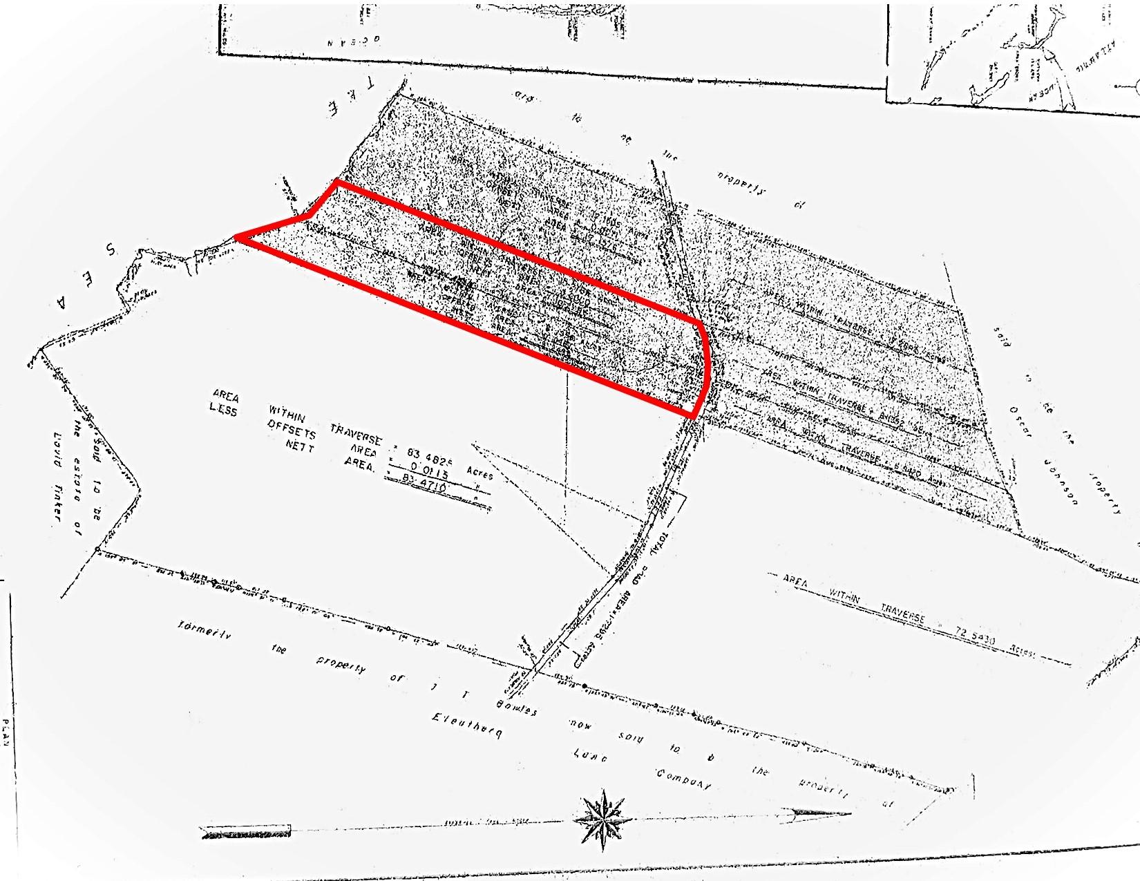
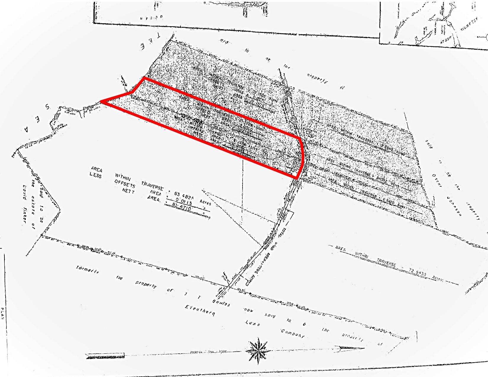
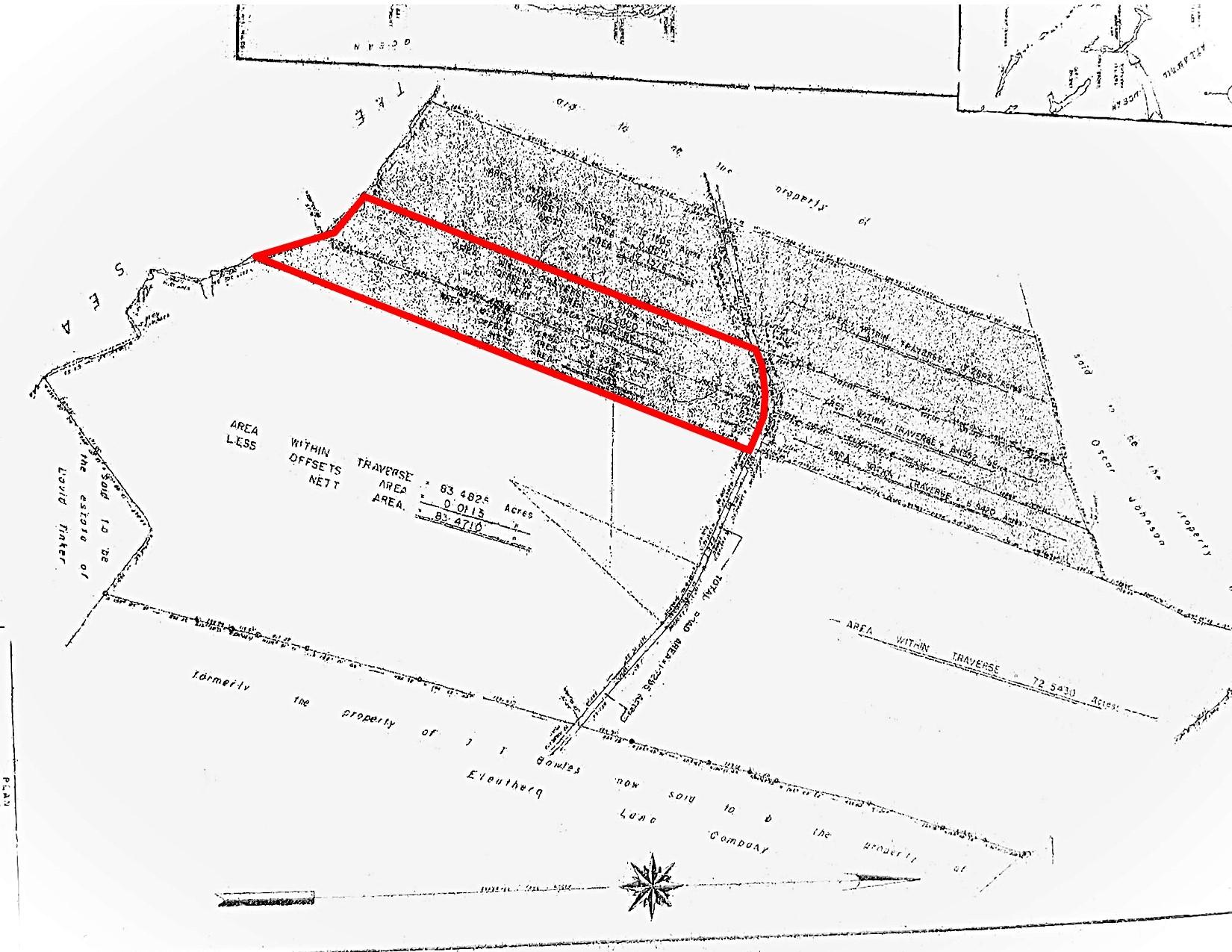
Situated one mile south of Governorâs Harbour on the âCaribbeanâ side of the Kingâs Highway this 83.47 acre tract has elevations up to 75 feet. Property is ideally situated for land development with spectacular sea views, elevations and a rocky shoreline frontage with an approximate depth of 5 feet in high tide. There is an adjacent 36.68 acre waterfront tract to the north for sale. All utilities are on the Highway. Eleuthera is situated approximately 50 miles east of Nassau at its nearest point. It was settled in 1648 by the Eleutheran Adventurers â a band of English Puritans who left Bermuda in search of religious freedom. They named the island Eleuthera, which means Freedom (Eleftheria in Greek). The Adventurers founded what was probably the first democracy in the western world. Eleuthera is over 100 miles long and has lots of gorgeous pink and white sandy beaches, mainly on the ocean (east) side of the island. Numerous settlements dot the island and two offshore islands âSpanish Wells and Harbour Island - lie off the northern end.
Show all descriptionThe data relating to real estate for sale/lease on this website comes in part from a cooperative data exchange program of the Bahamas Multiple Listing Service (MLS) in which these Brokers participate Bahamas Real Estate Association (BREA). The properties displayed may not be all of the properties in the Bahamas MLS database, or all of the properties listed with Brokers participating in the cooperative data exchange program. Properties listed by Brokers other than this Broker/Agent are marked with the IDX Symbol, indicating an agreement to exchange property information. Detailed information about such properties are noted as Courtesy of: The Bahamas MLS. Information provided is thought to be reliable but is not guaranteed to be accurate. You are advised to verify facts that are important to you. No warranties, expressed or implied, are provided for the data herein, or for their use or interpretation by the user. This information is protected from unlawful duplication by copyright.
Enter your email address and we will send you a link to change your password.